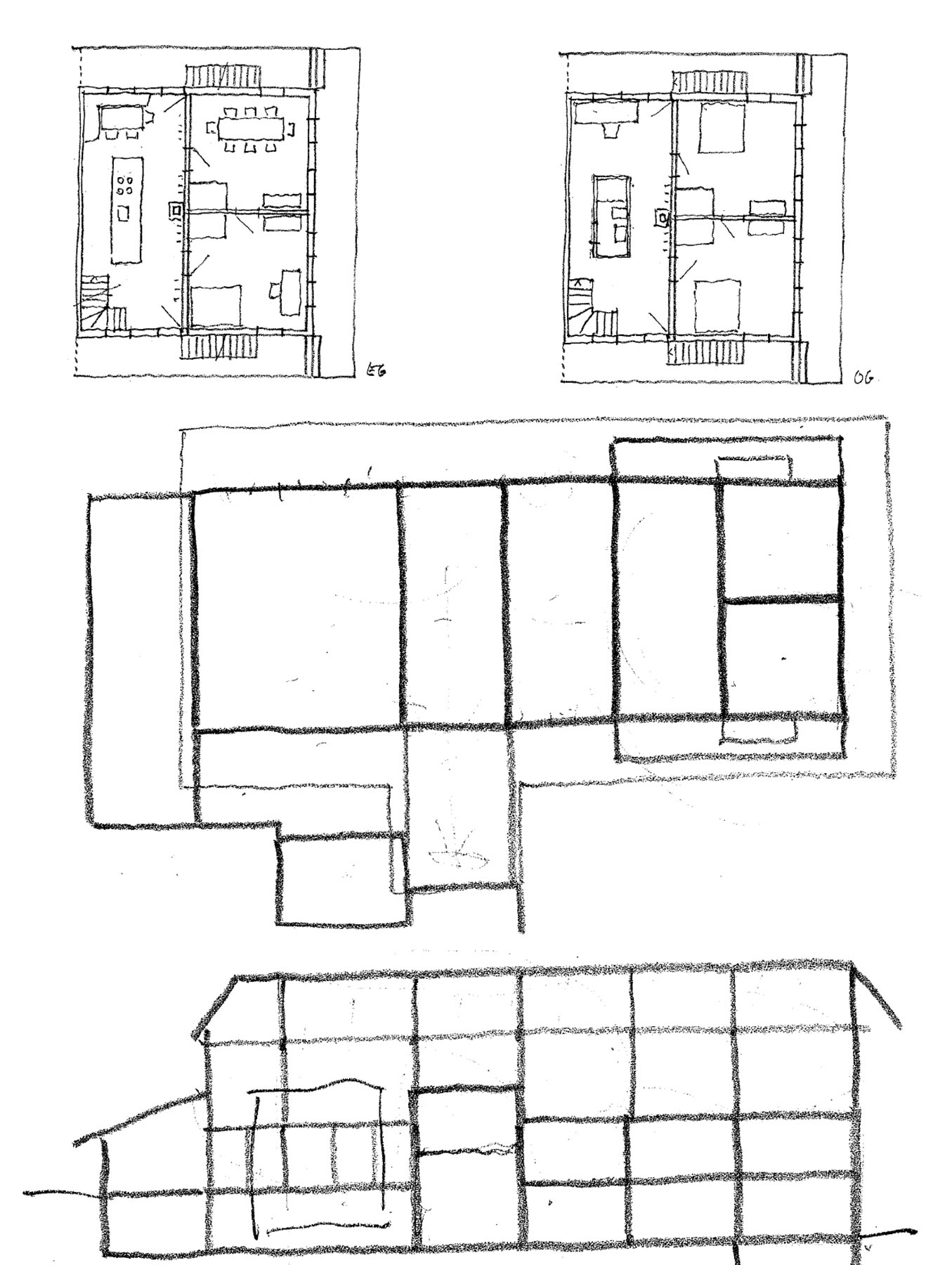
ANALYSE
BEI JEDER AUFGABE IST EINE ANALYSE VOM ORT, DER GESCHICHTE, DEN MATERIALIEN UND DES RECHTLICHEN RAHMENS EIN WICHTIGER AUSGANGSPUNKT UNSERER ARBEIT.
DIE ANALYSE GIBT UNS DIE REGELN VOR.
BEI JEDER AUFGABE IST EINE ANALYSE VOM ORT, DER GESCHICHTE, DEN MATERIALIEN UND DES RECHTLICHEN RAHMENS EIN WICHTIGER AUSGANGSPUNKT UNSERER ARBEIT.
DIE ANALYSE GIBT UNS DIE REGELN VOR.